プランに合わせて選べる 2つのタイプ


グループでのご利用に最適な、15名様用のロッジと、ファミリーでのご利用に最適な、7名様用のロッジがあります。
当施設は貸別荘ですので、他のお客様のことを気にする事なく、施設を貸切で、開放的な気分でご利用いただけるのが特徴です。

15名様用ロッジ (全室エアコン完備、トイレは、ウォシュレット)


リビング・ダイニング


リビング

ダイニング

リビングから2階

2階 客室


客室(1)

客室(2)

客室(3)

1階 客室


客室

キッチン


キッチン

食器棚と冷蔵庫

キッチン周辺

バスルーム


カラン・シャワー

浴槽

テラス・バルコニー・その他


テラス

2階 バルコニー

薪ストーブ

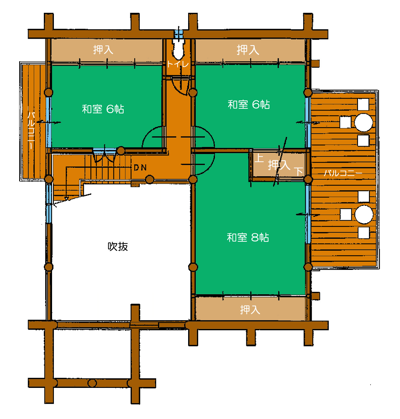
フロアー PLAN


1階 フロアー

2階 フロアー

7名様用ロッジ (全室エアコン完備、トイレは、ウォシュレット)


リビング・キッチン


リビング・キッチン

ロフトへのアプローチ・ロフト


ロフトアプローチ

ロフト

和室


和室

フロアー PLAN


1階 フロアー
和室、浴室の2階に14畳のロフト
があります。
ロフトには天窓があります。
一覧表には寝具4組となっておりますが、
8組ございます。





リトリート・イン浦富
鳥取県岩美郡岩美町牧谷1860-4
TEL 0857-31-1578 FAX 0857-28-9113
(営業時間 月曜日 ~ 金曜日 9:00~18:00)

Copyright © 2015 retreat・inn uradome All rights reserved.